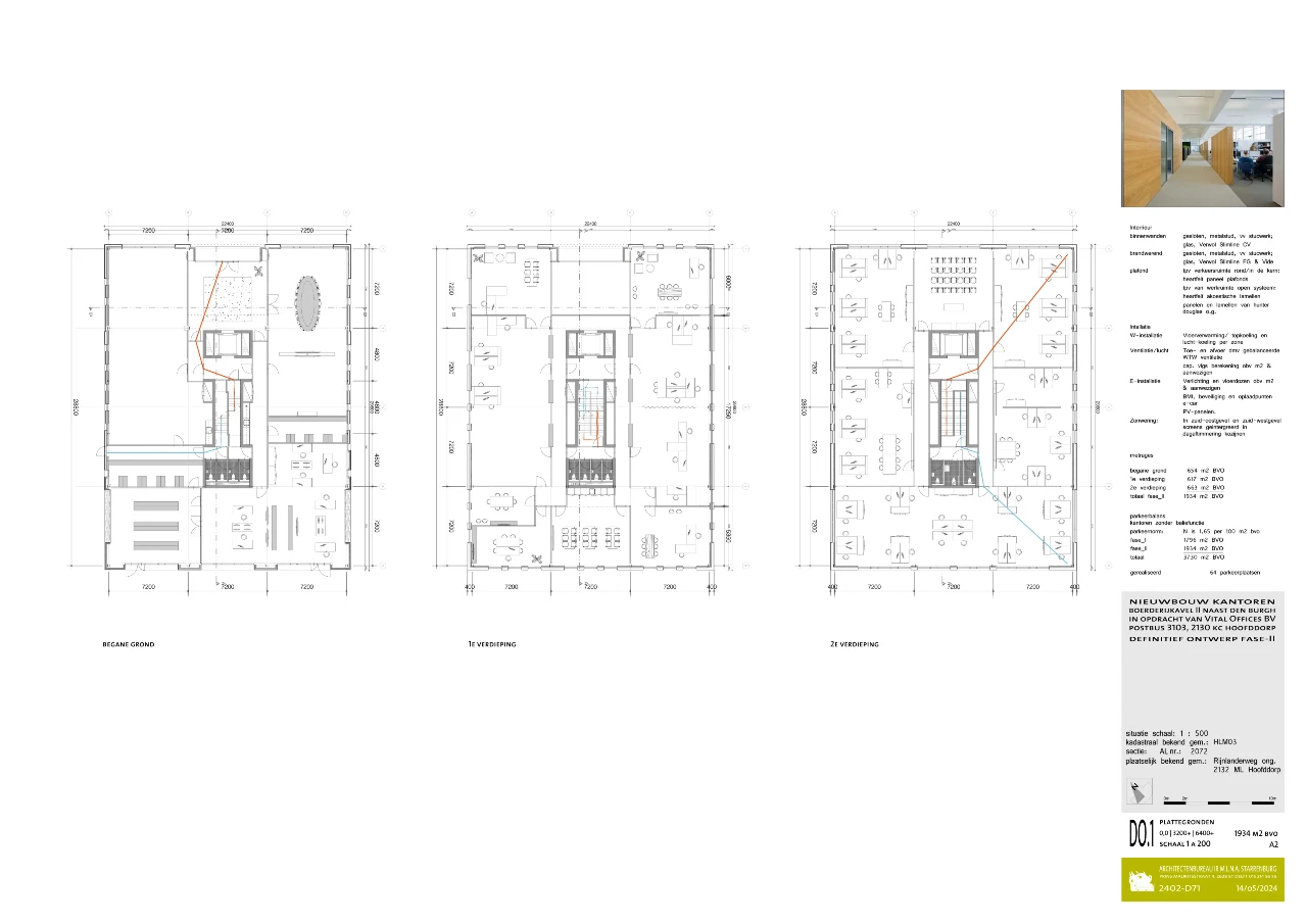
OBJECT
Fase 2 van 'den burg offices'. Een nog te realiseren modern en representatief kantoorgebouw gelegen op een unieke locatie op kantorenpark Beukenhorst Zuid, aan de Taurusavenue 187-191 te Hoofddorp.
LOCATIE
De bereikbaarheid van dit object per auto is zeer goed met de op- en afritten van de Rijksweg A4 op steenworpafstand. Per openbaar vervoer is het object eveneens zeer goed bereikbaar met het NS-station en een Zuidtangent-halte op slechts enkele minuten loopafstand.
KADASTRALE GEGEVENS
- Gemeente: Haarlemmermeer
- Sectie: AL
- Nummers: 2696 (gedeeltelijk), 2069 (gedeeltelijk) en 2761 (gedeeltelijk)
OPPERVLAKTE
Het totale kantoorgebouw bestaat uit circa 1.775 m² verdeeld over 3 verdiepingen, te weten:
- Begane grond circa 550 m²
- Eerste verdieping circa 565 m²
- Tweede verdieping circa 660 m²
PARKEREN
Er zijn 28 parkeerplaatsen op eigen terrein beschikbaar.
Neem contact met ons op voor de beschikbaarheid.






